Back to search

St. Ive, Liskeard, Cornwall PL14

£700,000 Guide Price

  • Bedrooms 8
  • Bathrooms 6
  • Reference LIS230138

Features

  • An 8 bedroom multi-generational home in private grounds of 0.67 acres
  • Enclosed low maintenance established gardens with a range of outbuildings within
  • Excellent versatility & income potential
  • Private secure driveway & garage providing ample parking

Description

GUIDE PRICE £700,000 - £725,000. An expansive and extremely versatile residence that offers generously proportioned living accommodation throughout and the potential for multigenerational living.

Beechwood cottage is a delightful residence that is positioned on a generous sized plot measuring 0.67 acres with a variety of outbuildings and a plentiful amount of off road parking on the private driveway.

Approached via electric gates the property is surrounded by mature low maintenance gardens with a variety of mature flowering trees and shrubs dispersed throughout.

This unique eight bedroom detached residence offers tremendous potential to be used as one family home or divided into multigenerational living, also having the opportunity for income potential. 

Set within the grounds is a substantial detached double storey triple garage that offers a wealth of possibilities for it use, with a workshop on the ground floor and living accommodation conveniently situated on the first floor.

Beechwood Cottage also currently boasts a grant of planning permission to extend the annex accommodation, further details of this can be obtained by Kivells Liskeard office.

An internal viewing is essential to not only appreciate the wonderful living accommodation but also the substantial gardens and immense potential that this delightful residence offers.

Beechwood Cottage Accommodation
Entrance via wooden door with single glazed
panelling inset into:

Entrance Hallway
Exposed wooden beams to ceiling, radiator, uPVC double glazed window to rear elevation overlooking the enclosed rear garden, stairs rising to first floor with under stair storage below.

Dining Room
uPVC double glazed dual aspect window to front
elevation, exposed wooden beams to ceiling, wood burning stove with feature stone surround, radiator.

Kitchen
Range of fitted wall and base units with roll top work surfaces over incorporating a composite sink and drainer with mixer tap, uPVC double glazed window to rear elevation overlooking the rear garden, space and plumbing for dishwasher, integrated oven, integrated four ring electric hob with extractor fan over, exposed wooden beams to ceiling, radiator.

Boot Room
uPVC double glazed window to front and side
elevation, fitted wall storage units, space for
freestanding fridge freezer.

Rear Porch
Wooden stable door leading to rear garden, range of fitted wall units providing storage, space and plumbing for washing machine.

Ground Floor W.C
Low-level W.C, obscure uPVC double glazed window to rear elevation, wash hand basin.

Living Room
uPVC double glazed windows to the front and side elevations, radiators, exposed wooden beams to ceiling, wood burning stove with feature stone
surround, door into extended accommodation (self-contained annex).

Ground Floor Bathroom
Obscure uPVC double glazed window to rear
elevation, pedestal wash hand basin, low-level W.C, bath with panelled surround and mixer shower tap, radiator.

First Floor Hallway
Doors off to all first floor rooms, built in storage
cupboard.

Bedroom
uPVC double glazed window to front and rear
elevation with far reaching views beyond, mirrored wardrobes, radiator, exposed wooden beams to ceiling, stairs rising to:

Ensuite Shower Room
Pedestal wash hand basin, low-level W.C shower
cubicle with power shower., radiator

Bedroom
uPVC double glazed window to front elevation, built in mirrored wardrobes, radiator.

Bedroom
uPVC double glazed window to front and rear
elevation with far reaching views beyond, mirrored wardrobes, radiator, exposed wooden beams to ceiling, stairs rising to:

Ensuite Shower Room
Pedestal wash hand basin, low-level W.C shower
cubicle with power shower.

Extended Living Accommodation / Self-contained Annex
Entrance via uPVC double glazed door into:-

Entrance Hallway
Doors off to all rooms, built in storage cupboard.

Kitchen
A range of fitted wall and base units with roll top work surfaces over incorporating a 1 1/2 bowl composite sink and drainer with mixer tap, four ring electric hob with extractor fan over, integrated oven, space and plumbing for washing machine, space for under counter fridge and freezer, uPVC double glazed window to front and side elevation overlooking the enclosed garden, radiator, exposed wooden beams to ceiling.

Bathroom
Low level W.C, pedestal wash hand basin, bath with panelled surround and mixer shower tap, obscure uPVC double glazed window to front elevation, radiator.

Bedroom
Exposed wooden beams to ceiling, radiator, uPVC
double glazed window to front elevation, radiator.

Living Room
uPVC double glazed windows to front elevation,
exposed wooden beams to ceiling, radiator, uPVC
double glazed sliding doors opening onto the enclosed rear garden, wood burning stove with stone feature surround.

Bedroom
uPVC double glazed window to rear
elevation overlooking the enclosed rear garden,
radiator, door into Beechwood Cottage Living Room. This allows easy access into the main house or could be blocked to separate the two.

Annex Accommodation
Entrance via a uPVC door with double glazed panelling inset to the side elevation, leading into:-

Utility
Door into garage, stairs rising to the first floor, uPVC double glazed window to the front elevation, a range of fitted base units with work surface, space and plumbing for washing machine.

Kitchen
uPVC double glazed window to side elevation with views across the side garden, range of fitted wall and base units with roll top work surfaces over incorporating a composite sink and drainer with mixer tap, four ring electric hob and extractor fan over, space for under counter fridge or freezer, uPVC double glazed door leading to sun terrace, integrated cooker. 

Living Room
uPVC double glazed window to front elevation with far reaching views beyond, wood burning stove.

Bathroom
Low-level W.C, Velux skylight, pedestal wash hand
basin, heated towel rail, shower cubicle tiled
floor-to-ceiling with main shower.

Bedroom
uPVC double glazed window to rear elevation with far reaching views across the enclosed rear garden, exposed wooden beams to ceiling, built in storage cupboard, radiator.

Bedroom
uPVC double glazed window to front elevation, exposed beams to ceiling, radiator.
 
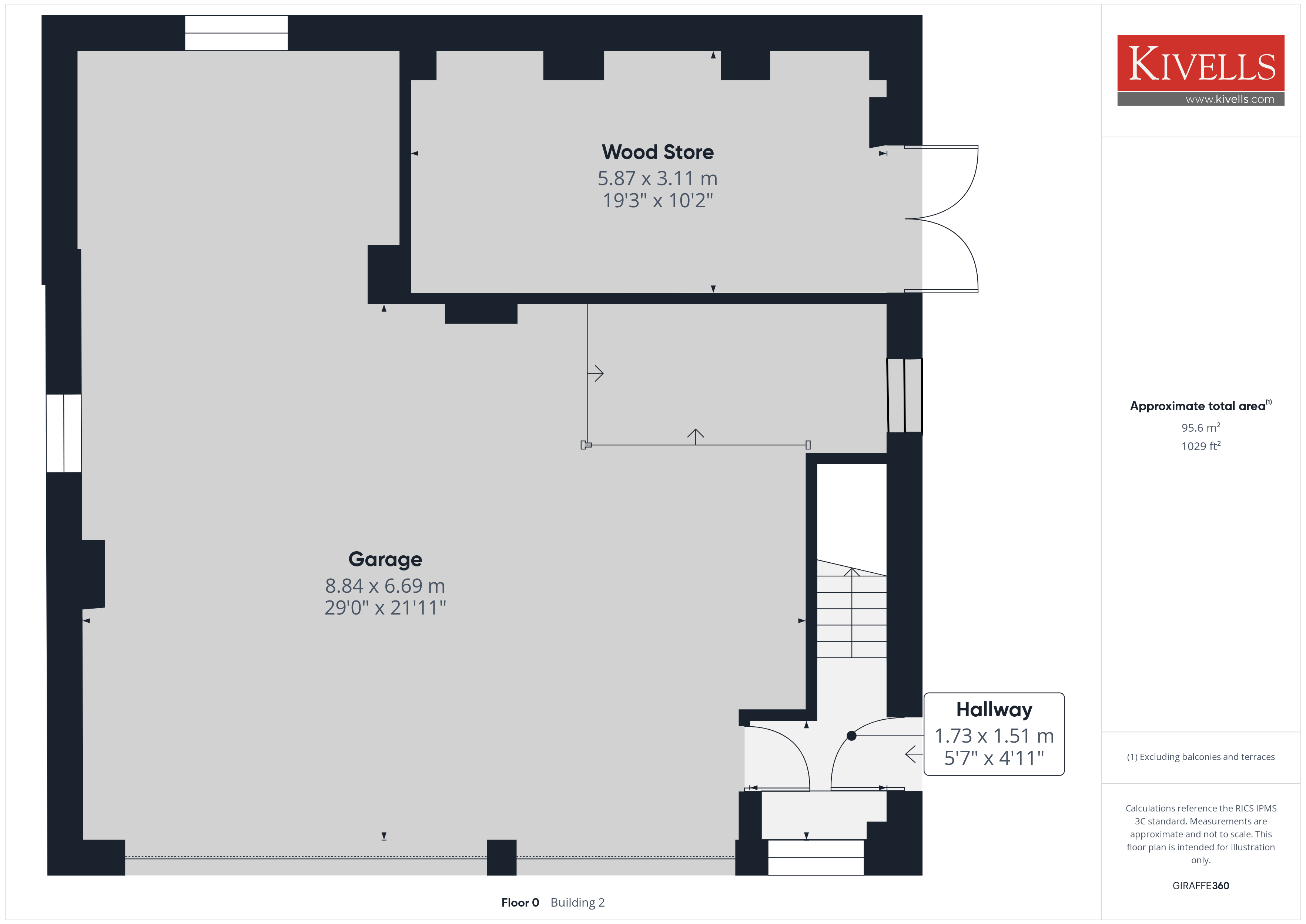
Garage
A triple garage is situated at the end of the gravelled driveway, with Annex above, having up and over doors. This area provides ample capacity for additional parking and has the ability to be used for storage space. It also houses the boiler for the Annex. To the rear of the garage there is a woodstore, having power throughout and separate access.

Cabin Accommodation
Entrance via double wooden single glazed doors into:

Kitchen
Range of fitted wall and base units with roll top work surfaces over incorporating a stainless steel sink and drainer with mixer tap, space for freestanding electric cooker, uPVC double glazed window to side elevation.

Shower Room
Low-level W.C, wash hand basin, glazed shower
cubicle tiled floor-to-ceiling with main shower.

Living Room
uPVC double glazed window to front elevation
overlooking the enclosed garden beyond, convector heater.

Bedroom
uPVC double glazed window to front elevation with far reaching views beyond, convector heater.
Within the bedroom, the current owners have installed a Sauna.

Outside
Excellently positioned within the Cornish village of St Ive, Beechwood Cottage is approached via a private electric gated entrance that opens onto a large substantial driveway with a wealth of parking available.

Impeccably maintained mature gardens surround the property being predominantly laid to lawn whilst having a variety of mature flowering trees and shrubs dispersed throughout. The gardens are an excellent space to relax and enjoy outdoor dining and entertaining.

Beechwood Cottage boasts a detached double storey triple garage that has a wealth of possibilities for it use. This versatile outbuilding enjoys a workshop to the ground floor in living accommodation to the first floor and is a tremendous asset to the main residence

Outbuildings
In addition to the garage & woodstore already mentioned, located within the grounds is a large outbuilding, offering a range of possibilities for its use and a further shed and potting shed to the back of the garden.

Services
Mains electric, water, private drainage and oil fired central heating. Beechwood Cottage and the Annex have separate heating systems, with one oil tank servicing each.

Tenure
Freehold

EE Rating - E / Annex—C

Council tax band - F / Annex—A

Directions
What3Words – redeemed.motoring.drifting

Virtual Tour
https://tour.giraffe360.com/341365cec64f4e3bb186ad830042ff6f

Agents Note
The current planning permission granted for extension of the self-contained annex is due to lapse 12th December 2025.

Viewings strictly by appointment only
Please ring 01579 345 543 to view this property and check availability before incurring travel time/costs. Full details of all our properties are available on our website www.kivells.com.

Verified Material Information
Council Tax band: F
Tenure: Freehold
Property type: House
Property construction: Standard construction
Energy Performance rating: E
Electricity supply: Mains electricity
Solar Panels: No
Other electricity sources: No
Water supply: Mains water supply
Sewerage: Septic tank
Heating: Oil-powered central heating is installed.
Heating features: Double glazing and Wood burner
Broadband: FTTC (Fibre to the Cabinet)
Mobile coverage: O2 - Good, Vodafone - OK, Three - Great, EE - Good
Parking: Garage, Driveway, Gated, and Private
Building safety issues: No
Restrictions - Listed Building: No
Restrictions - Conservation Area: No
Restrictions - Tree Preservation Orders: None
Public right of way: No
Long-term area flood risk: No
Historical flooding: No
Flood defences: No
Coastal erosion risk: No
Planning permission issues: No
Accessibility and adaptations: None
Coal mining area: No
Non-coal mining area: No
All information is provided without warranty. Contains HM Land Registry data © Crown copyright and database right 2021. This data is licensed under the Open Government Licence v3.0.

The information contained is intended to help you decide whether the property is suitable for you. You should verify any answers which are important to you with your property lawyer or surveyor or ask for quotes from the appropriate trade experts: builder, plumber, electrician, damp, and timber expert.

Documents

Floor Plans

Location

Video Tour

Liskeard

7 - 8 Bay Tree Hill, Liskeard, Cornwall PL14 4BE

Request a Viewing

Register For Property Updates