Pyworthy, Holsworthy, EX22

£350,000

Features

  • Reserved matters planning permission granted
  • No CIL to pay
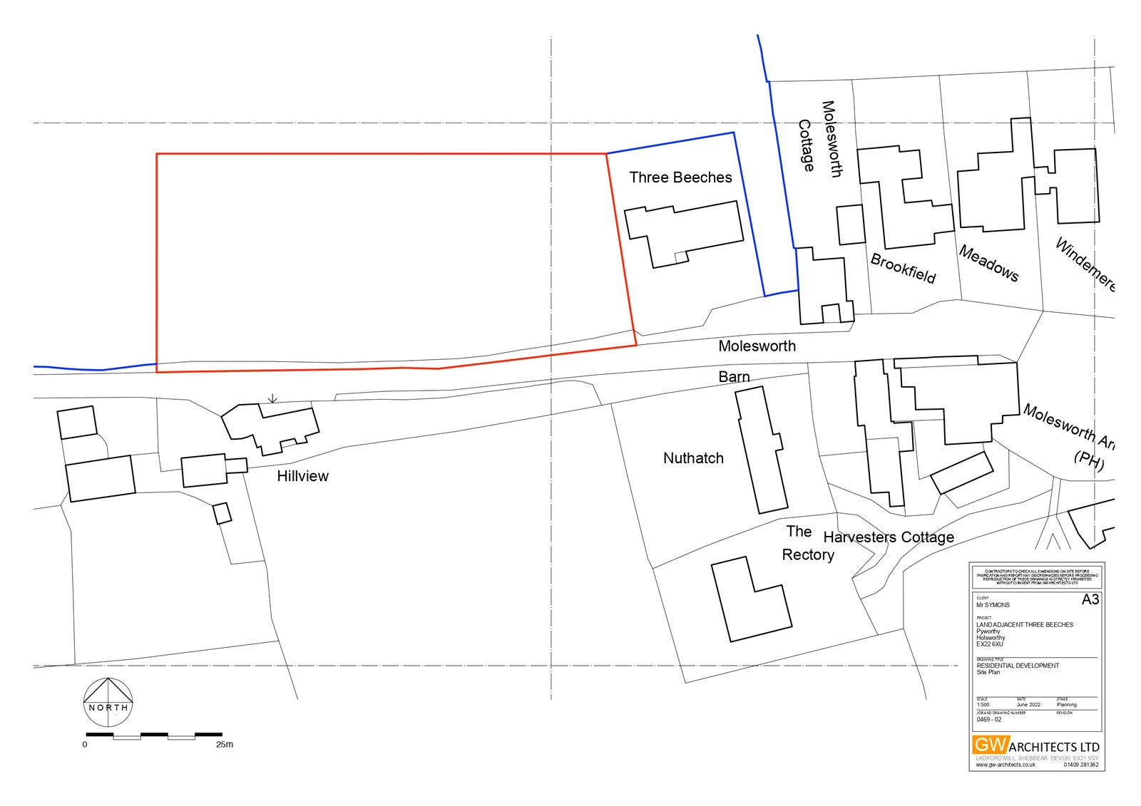
  • Site for 4 detached dwellings
  • Sites backing onto open farmland
  • Further land available by separate negotiation
  • Sought-after village location
  • Less than 9 miles to the beach

Description

Excellent development opportunity for 4 detached dwellings on good sized plots backing onto open countryside.

The site is generally level with a gentle slope from east to west. The site comes under Torridge district council and does not have CIL to pay.

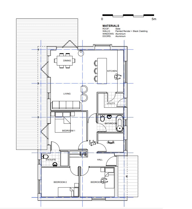
The floorplans created are for 4 x three bedroom bungalows with large open plan kitchen/living/ dining rooms. With bi-fold doors to the north and west elevations the main living space will be light and airy and bosting far reaching countryside views. The master bedroom will feature a spacious ensuite and all will be complemented by two further bedrooms, a family bathroom, study and utility room.

The vendors have advised that further land could also be available by separate negotiation.

All relevant and supporting documentation pertaining to the planning permission is available for inspection at the agents office at Kivells, The Property Suite, Market Square, New Market Road, Holsworthy, EX22 7FA.

PLANNING

Reserved matters planning has been granted under 1/1048/2024/REM dated 30th January 2025 and was previously given outline approval under number 1/0685/2022/OUT dated 17th January 2023.

A full copy of the planning consent, a copy of the planning officer’s report to the committee and other supporting documents are available on the Torridge Distract Council website or from the agents, upon request.

The advisers who assisted the application are:

GW Architects

T: 01409 281362

E: gareth@gw-architects.co.uk

W: www.gw-architects.co.uk

COMMUNITY INFRASTRUCTURE LEVY

Please note that the proposed development will not be liable for a charge under the Community Infrastructure Levy (CIL) Regulations.

OFF SITE ALLOTMENT CONTRIBUTION

Means the sum of £704.74 (Seven Hundred and Four Pounds Seventy Four Pence) being a contribution towards the provision of allotments in the vicinity of the Site.

OFF SITE PARKS, SPORTS AND RECREATION CONTRIBUTION

Means the sum of £16,489.37 (Sixteen Thousand Four Hundred and Eighty Nine Pounds and Thirty Seven Pence), being a contribution for improvements and provision of recreational facilities near the Site.

OFF SITE PLAY SPACE CONTRIBUTION

Means the sum of £4,288.04 (Four Thousand Two Hundred and Eighty Eight Pounds and Four Pence) being a contribution for the provision or enhancement of play spaces in the vicinity of the Site.

SERVICES

There are main utility services located in the vicinity, however prospective purchasers must verify availability for any mains services required and the costs of connection of such services, for themselves.

WHAT.3.WORDS.COM LOCATION

Access for Viewing: ///artichoke.unrealistic.fattest

SITE PLAN

Site plan for identification purposes only, not to scale. Full planning documents and plans are available at the agents office or online.

IMPORTANT NOTICE

Kivells, their clients and any joint agents give notice that:

1. They are not authorised to make or give any representations or warranties in relation to the property either here or elsewhere, either on their own behalf or on behalf of their client or otherwise. They assume no responsibility for any statement that may be made in these particulars. These particulars do not form part of any offer or contract and must not be relied upon as statements or representations of fact.

2. Any areas, measurements or distances are approximate. The text, photographs and plans are for guidance only and are not necessarily comprehensive. It should not be assumed that the property has all necessary planning, building regulation or other consents and Kivells have not tested any services, equipment or facilities. Purchasers must satisfy themselves by inspection or otherwise.

Disclaimer

Kivells, their clients and any joint agents give notice that they are not authorised to make or give representations or warranties in relation to the property. No responsibility is accepted for any statement within these particulars, which do not form part of any offer or contract. Areas, measurements and boundaries are approximate. Text, photographs, CGI’s and plans are for guidance only. It should not be assumed the property has all necessary planning or building consents, and Kivells have not tested any services or equipment. The property is sold subject to all matters in the Property and Charges Register, including rights of way and easements. Purchasers are deemed to know all boundaries. Nothing herein constitutes financial advice; seek your own. Use of Mortgage Genies SW Ltd. will result in a £250 + VAT referral fee to Kivells. Kivells retains copyright to all particulars and media.

Documents

Floor Plans

Location

Bude

8 Belle Vue, Bude, Cornwall EX23 8JL

Request a Viewing

Register For Property Updates