Sutcombe, Holsworthy, Devon EX22

£215,000 Guide Price

  • Bedrooms 3
  • Reference BUD250427

Features

  • For sale by public auction on Wednesday 12th November 2025 at 7pm Strawberry Field, Lifton, Devon PL16 0DH
  • Planning has been granted for the conversion of the former primary school into a pair of semi detached homes
  • Excellent village location with countryside views
  • EPC rating—F

Description

For sale by Public Auction at Lifton Strawberry Fields, Lifton, Devon on Wednesday 12th November 2025 at 7pm.

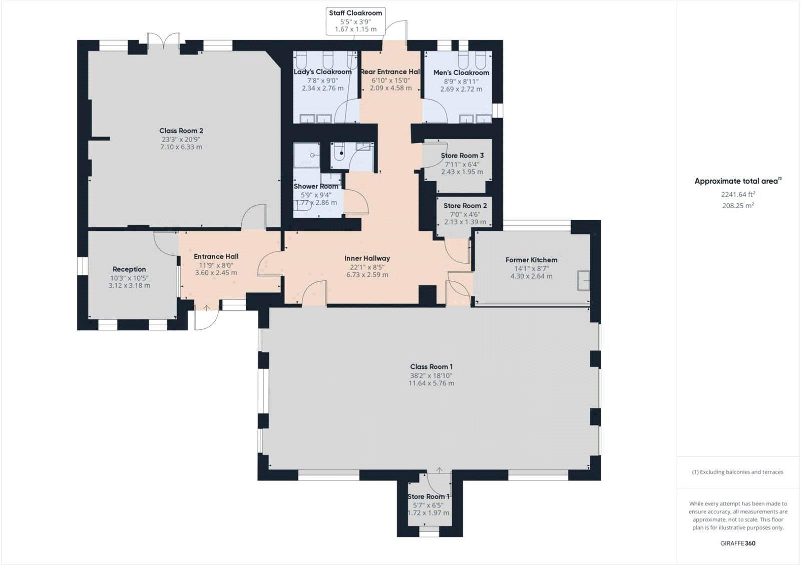
The former school house boasts planning permission for a pair of spacious 3&4 bedroom properties, located on the edge of the village, next to the park and village hall.

The 4 bedroom home will feature a large living room, separate kitchen/ dining room with bi-fold doors to the west facing rear garden and a ground floor master bedroom with ensuite and walk in wardrobe, on the first floor the property has 3 additional double bedrooms and a family bathroom.

The 3 bedroom home comprises a generous open plan, kitchen/ living/ dining room, utility room and ground floor double bedroom. On the first floor there are two additional double bedrooms, one with an ensuite and family shower room.

PLANNING
Planning has been granted by Torridge District Council under planning ref: 1/0323/2024/FUL dated the 13th April 2024. A copy of the permission and associated drawing can be viewed on the Torridge District Council website at torridge.gov.uk. Building regulations have been drawn up and will be included in the sale along with the ecological survey and reports.

THE SITE
The building is set on the edge of the village and consists of a single-story, double height building. The original building is an attractive stone building with some more modern, rendered extensions.

PROPOSED ACCOMMODATION
The proposed plans comprises a three bedroom and a 4 bedroom, semi-detached dwelling, both using the footprint of the existing school building with no extensions required. Each property will have parking for two vehicles and gardens to the rear.

Parking spaces have been provided to the side of the property, whilst a garden area has been designed to the side and rear. Vehicular and pedestrian access to the proposed dwelling will be via the existing access.

The planned dwelling will retain the form and character of the original building, with the addition creating a light and open space enjoying excellent views.

PROPOSED FLOOR PLAN
The proposed floor plans are for identification purposes only.

AUCTION VENUE
Lifton Strawberry Fields, Lifton, Devon PL16 0DH on Wednesday 12th November 2025 at 7.00pm

REGISTRATION
Please note ALL BIDDERS, including Kivells existing clients, will need to register with Kivells on the night of the auction in order to comply with The Money Laundering, Terrorist Financing and Transfer of Funds (Information on the Payer) Regulations 2017 (the “Regulations”) - as of 26th June 2017.

Bidders will be required to provide one form of government issued photographic identity and a utility bill addressed to them at their home address, dated within 3 months of the date of the auction. Failure to do this, may prejudice your ability to bid on the night.

ONINE BIDDERS
Online bidding registration will be available 10 days before each auction and all bidders must register at least 48 hours prior to the auction. For further information, please visit your local Kivells office.

BUYERS ADMINISTRATION FEE'S
All successful buyers at Kivells’ Property Auctions should note that on exchange of contracts, a Buyer’s Administration Fee of £2,000 plus VAT (Total: £2,400 inc VAT) is payable to Kivells on the night of the auction. This fee can be paid by either bank transfer, personal cheque or direct card.

Please note, if the lot is sold prior to auction, or afterwards, these fees remain payable. There are no discounts for multiple lots purchased and you must consider this when bidding/offering prior.

All interested buyers are advised to review the Auction Legal Pack prior to bidding. This can be obtained from the Kivells website and is free to download.

Any fees that are owed in addition to the buyer's administration fee will be included within the legal pack.

SOLICITOR Ben Mitchell, Parnalls Solicitors.

AUCTION PAYMENT
At the fall of the gavel the contact is legally binding and a 10% deposit (subject to a minimum fee of £5,000) will be required to be paid by the successful bidder. The deposit has to be paid to Kivells as auctioneers and can only be paid in the form of a cheque or bank transfer.

The deposit is also payable for all lots that are sold prior to auction. ALL bidders must only bid if they can make this payment.

Cheques must be drawn on a bank or branch of a bank in the United Kingdom, any other cheques may be rejected and it will be the responsibility of the purchaser to ensure they have the correct method of payment available at each auction.

LOCAL AUTHORITY - Torridge

EASEMENTS, WAYLEAVES, RIGHTS OF WAY
The property is offered for sale, subject to and with the benefit of all matters contained in or referred to in the Property and Charges Register of the registered title together with all public or private rights of way, wayleaves, easements and other rights of way, which cross the property.

BOUNDARIES
Any purchasers shall be deemed to have full knowledge of the boundaries and neither vendor nor the vendor’s agents will be responsible for defining the boundaries or the ownership thereof. Should any dispute arise as to the boundaries or any points on the particulars or plans or the interpretation of them, the question shall be referred to the vendor’s agent whose decision acting as experts shall be final.

SERVICES
Mains water, electric and drainage

GUIDE PRICE
Guide prices given are indications within 10% upwards or downwards of where the reserve price may be set at the time of going to print. Please note they are not an indication of the anticipated sale price or a valuation.

The reserve price is the minimum price at which the property can be sold, both the guide price and reserve price may be subject to change up to and including the day of the auction. Please note that all prices listed, whether prior to or post auction, are subject to contract.

The Auctioneers and sellers accept no responsibility for any loss, cost or damage that a buyer may incur as a result of relying on any guide price. It is the buyer's responsibility to decide how much they should bid for any lot. Please check with us for regular updates as guide prices are subject to change prior to the auction.

The guide price does not include the buyer's fee charged by the auctioneer or VAT which may apply to the sale or other amounts the seller may charge.

The seller's Special Conditions of Sale will state whether there are other seller's charges and whether the seller has elected to charge VAT on the sale price.

Documents

Floor Plans

Location

Holsworthy

Kivells Property Suite, Market Square, New Market Road, Holsworthy, Devon EX22 7FA

Request a Viewing

Register For Property Updates