Back to search

Hartland, Bideford, Devon EX39

POA

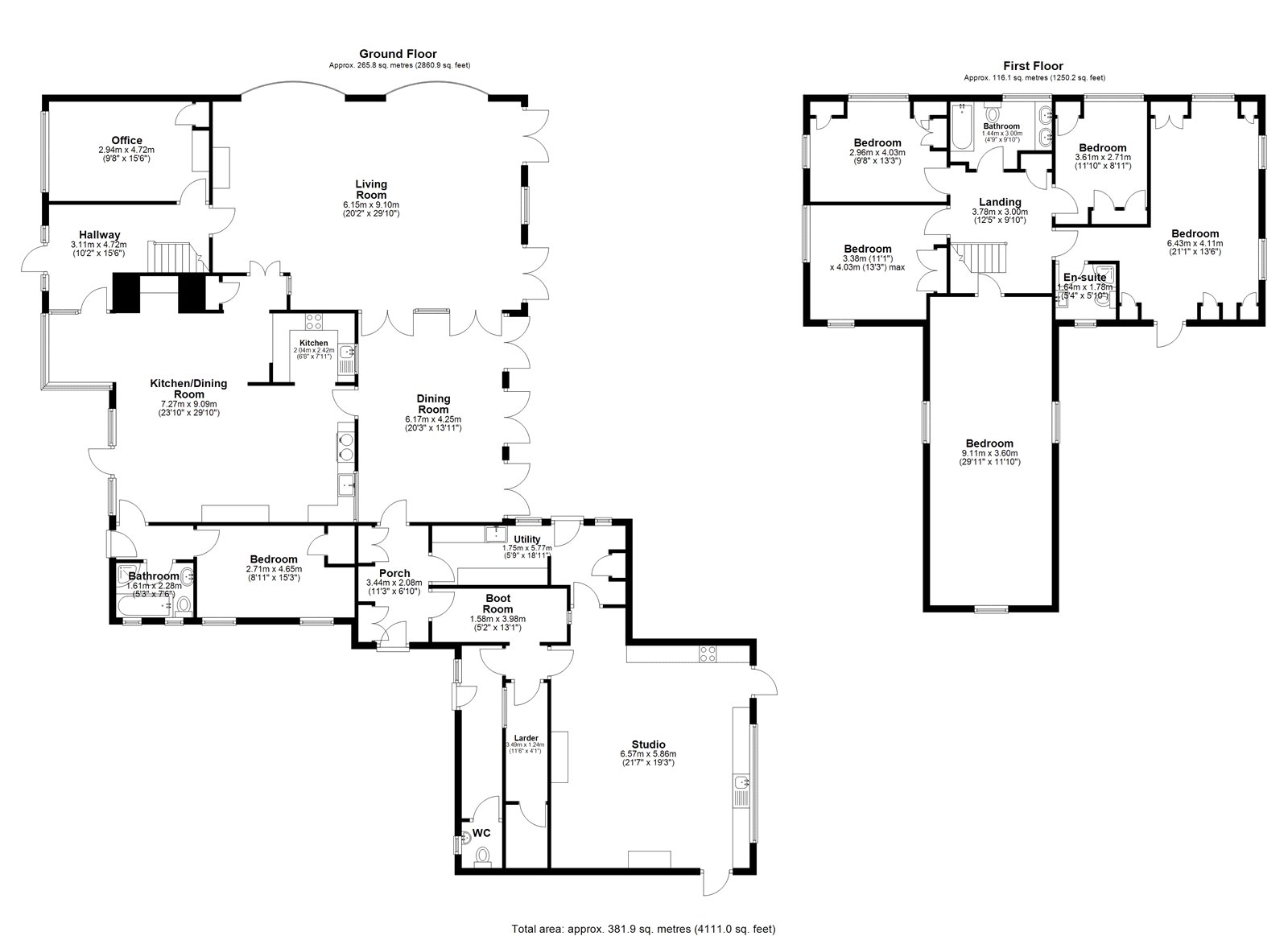
  • Bedrooms 8
  • Bathrooms 6
  • Reference BUD250444

Features

  • Private and secluded location with no near neighbours
  • 50 acres of land comprising open pasture, woodland, wildlife ponds and productive vegetable gardens
  • Heated outdoor swimming pool
  • Two annexes which would be perfect for holiday accommodation
  • Range of outbuildings for a variety of uses
  • EPC— D (House and Annexe)

Description

Weekaborough Farm represents a fantastic and rare opportunity to acquire a property set in a dramatic location just above the coast on the Hartland Peninsular.

The property comprises of a large unique house with annex, gardens, paddocks, a pond and private access across its own land right down to the high tide mark, benefiting from its own foreshore. This beautifully presented property with considerable grounds is a unique addition to the market, and early viewings are strongly recommended.

The substantial main house occupies a stunning plot upon the grounds, and is surrounded by a large, well-maintained lawn and magnificent coastal and countryside views. The property has benefited from renovations, with the works undertaken ensuring the retention of the character and many original features of the property, whilst adding an array of complementary modern features. The main reception rooms are large and bright, whilst the kitchen and sitting areas have a more traditional feel with beams and large open fireplaces. The impressive and spacious accommodation enjoys excellent natural light and far-reaching countryside and sea views. In addition, the property benefits from two annexes, one of which attaches to the main property and therefore can be integrated to form part of the main house, and the other detached property which serves as perfect overflow accommodation or would be suitable for multigenerational living.

In addition to the main house, Weekaborough Farm extends to about 50 acres, comprising of approximately 20 acres of pasture land, 5.5 acres of stunning gardens and mature woodland and the remainder leading down to the foreshore, with private access across its own land to the beach below. The gardens have been carefully landscaped and well considered pockets of space, seclusion and intrigue are hidden behind every corner and this especially true with the outdoor heated swimming pool which is completely hidden from view. In addition to the generous outside space, the property also benefits from solar panels, ground source heat pump, providing low running costs, and an array of useful outbuildings.

LOCATION

This area of coastline of North Devon leading on to the North Cornish coast is particularly unspoilt with dramatic cliffs and small remote beaches accessed either from the sea or on foot. The property and grounds are situated in a unique location on the North Devon coastline of the Hartland Peninsula, with an Area of Outstanding Natural Beauty (AONB), enjoying complete peace and tranquillity due to its secluded location. There is good road access to nearby Welcombe Mouth and for surfing on sandy beaches there is an excellent choice within easy reach at Sandymouth and Bude. The property is located within twenty miles of the market towns of Bideford and Holsworthy, and is therefore situated a comfortable driving distance from shopping, leisure and recreational facilities, despite its private, rural location.

VENDORS' COMMENTS
“If you’ve ever walked along a secluded beach and come upon a striking property and wondered: “How do you ever get to live in a place like that?”, well, Weekaborough is one of those properties. Remote and detached surrounded by its own land with unrestricted views of both land and sea and nestled in acres of beautiful landscaped gardens, it is fair to say the place is unique as you would surely never get planning permission to build it in this day and age. If wildlife and gardening are your passions, if watching the Moon rise and the Sun set and the Milky Way throw itself across the night sky then You may well have found the place of your dreams.“

SERVICES
Private water, drainage and Ground source heat pump, mains electric, oil fired central heating and Aga.

EPC RATING: D (House and Annexe)

COUNCIL TAX BAND:
Weekaborough Farm - D
Chapel Lodge (Annexe) - D
Stable Cottage - B

Documents

Floor Plans

Location

Bude

8 Belle Vue, Bude, Cornwall EX23 8JL

Request a Viewing

Register For Property Updates