Back to search

Ruby Close, Holsworthy, Devon EX22

£280,000

  • Bedrooms 3
  • Bathrooms 1
  • Reference BUD260103

Features

  • Semi-detached three bedroom property
  • Open plan kitchen/diner with separate living room
  • Integral Garage, off-street parking and enclosed landscaped garden
  • Solar Panels and battery
  • Remainder of 10-Year NHBC Certificate
  • Walking distance to town centre
  • EPC Rating: C

Description

Modern three-bedroom semi-detached townhouse built by the well-regarded developers Cavanna Homes, offering well-presented and versatile accommodation arranged over three floors.

SITUATION

Modern three-bedroom semi-detached townhouse built by the well-regarded developers Cavanna Homes, offering well-presented and versatile accommodation arranged over three floors.

The property benefits from countryside views to the front, off-road parking, integral garage and a landscaped rear garden arranged over two levels, making it an ideal family home or low-maintenance modern property.

Accommodation briefly comprises entrance hall, WC, utility room and integral garage on the ground floor, living room, kitchen/dining room and further WC on the first floor, with three bedrooms and family bathroom on the second floor. Outside there is driveway parking to the front and an enclosed rear garden with patio and lawn.

LOCATION

The market town of Holsworthy provides a wide range of shopping, recreational and education facilities including Waitrose and Co-Op supermarkets, M&S food hall with associated fuel station, dentist, hospital and parkland 18-hole golf course.

The Cornish coastal town of Bude is some 9 miles west and provides further facilities including Blue Flag beaches, the stunning Southwest Coastal Path and a range of restaurants and bars.

The cities of Plymouth and Exeter are both within an hour’s drive with an extensive range of shopping facilities and onward travelling links, including the M5 motorway, international airport and mainline train station.

ACCOMMODATION

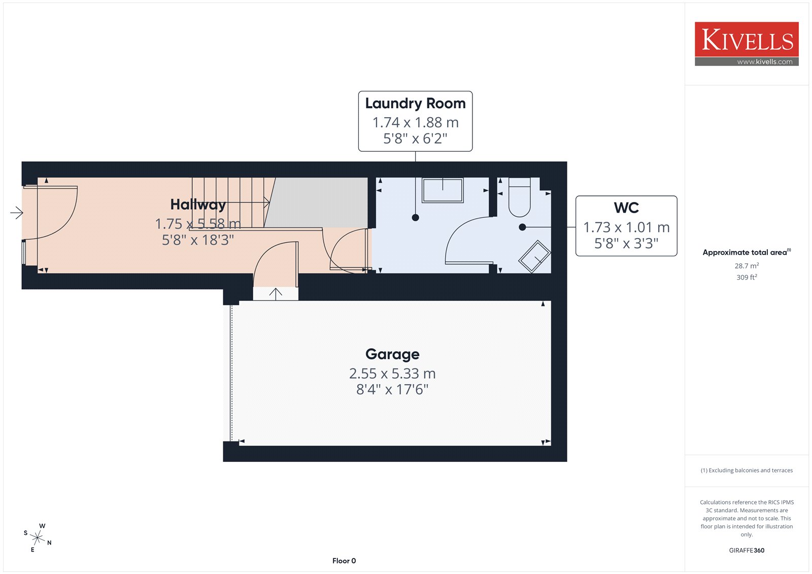
GROUND FLOOR
uPVC double-glazed door leading into:

ENTRANCE HALL
Ceiling light, radiator, wood-effect vinyl flooring, stairs rising to the first floor and door to integral garage. Doors to:

UTILITY ROOM
Matching eye and base-level units with undercounter space and plumbing for washing machine, extractor fan, ceiling light, consumer board, continuation of flooring. Door to:

WC
Ceiling light, pedestal handwash basin, WC, radiator, continuation of flooring.

FIRST FLOOR

LANDING
Ceiling light, radiator, fitted carpet, stairs rising to the second floor and doors to:

KITCHEN/DINING ROOM
uPVC double-glazed windows to the front aspect enjoying countryside views.

Fitted with a range of matching eye and base level units with work surface over incorporating 1½ bowl sink and drainer, electric hob with stainless steel splashback and extractor hood above, built-in double oven, integrated dishwasher and fridge/freezer. Ceiling lights, radiators, space for dining table, wood-effect laminate flooring.

LIVING ROOM
Good-size reception room with uPVC double-glazed window to the rear aspect and double patio doors leading to the garden. Ceiling light, radiators, space for living room furniture, wood-effect vinyl flooring.

SECOND FLOOR

LANDING
Ceiling light, loft hatch access, airing cupboard, fitted carpet and doors to:

BEDROOM ONE
Double-bedroom with uPVC double-glazed window to the front aspect, ceiling light, radiator, space for bedroom furniture, fitted carpet. Door to:

BEDROOM TWO
Double-bedroom with uPVC double-glazed window to the rear aspect, ceiling light, radiator, fitted carpet.

BEDROOM THREE
Currently utilised as a single bedroom. uPVC double-glazed window to the front aspect, ceiling light, radiator, space for bedroom furniture, built-in cupboard, fitted carpet.

BATHROOM
Three-piece suite comprising panel-enclosed bath with shower attachment over and tiled backing, pedestal handwash basin and WC. uPVC double-glazed window to the rear aspect, recessed spotlights, radiator, laminate flooring.

OUTSIDE

DRIVEWAY
The property is approached over a tarmacadam driveway offering offroad parking with paved access to the front.

GARDEN
Enclosed rear garden arranged over two levels with patio area directly off the living room, steps rising to a further patio with sleeper-edged flower beds. Pedestrian gate giving access to external staircase leading to the front of the property.

INTEGRAL GARAGE
Electric roller door to the front aspect, ceiling light, power connected.

SERVICES
Mains water, electricity, drainage and solar panels.

AGENT'S NOTE
The property benefits from the remainder of a 10 Year NHBC Certificate.

EPC RATING: C

COUNCIL TAX BAND: C

Documents

Floor Plans

Location

Bude

8 Belle Vue, Bude, Cornwall EX23 8JL

Request a Viewing

Register For Property Updates