Back to search

Cheriton Bishop, Exeter, Devon EX6

£495,000

  • Bedrooms 4
  • Bathrooms 2
  • Reference EXE250038

Features

  • Detached non-listed four bedroom property
  • Detached one bedroom Annexe
  • Charming gardens and grounds
  • Highly accessible location with superb transport links
  • Freehold with vacant possession available
  • In all about 0.40 acres
  • Further land could be made available by separate negotiation

Description

A detached four bedroom property with detached one bedroom annexe and approximately 0.40 acres in a highly accessible location.

Situation
Crossways Farmhouse is a highly accessible and well-positioned property, situated just outside the popular village of Cheriton Bishop on the edge of Dartmoor National Park. The location combines rural appeal with excellent transport connections, with the nearby A30 dual carriageway providing swift access to the M5 at Exeter, as well as direct routes west into Cornwall, making the property ideal for commuting and travel throughout the region.

The Cathedral City of Exeter offers an extensive range of retail, commercial, educational and recreational amenities, including well-regarded schools and colleges, a mainline railway station with regular services to London and other major cities, and an International Airport. Together, these facilities ensure that the property is exceptionally well connected for local, National and International travel.

Description
This attractive detached property, built in the late 1980s, provides spacious and adaptable accommodation ideal for family living. The main house is complemented by a modern detached one-bedroom annexe, offering valuable flexibility for multigenerational living, guest accommodation or potential ancillary use.

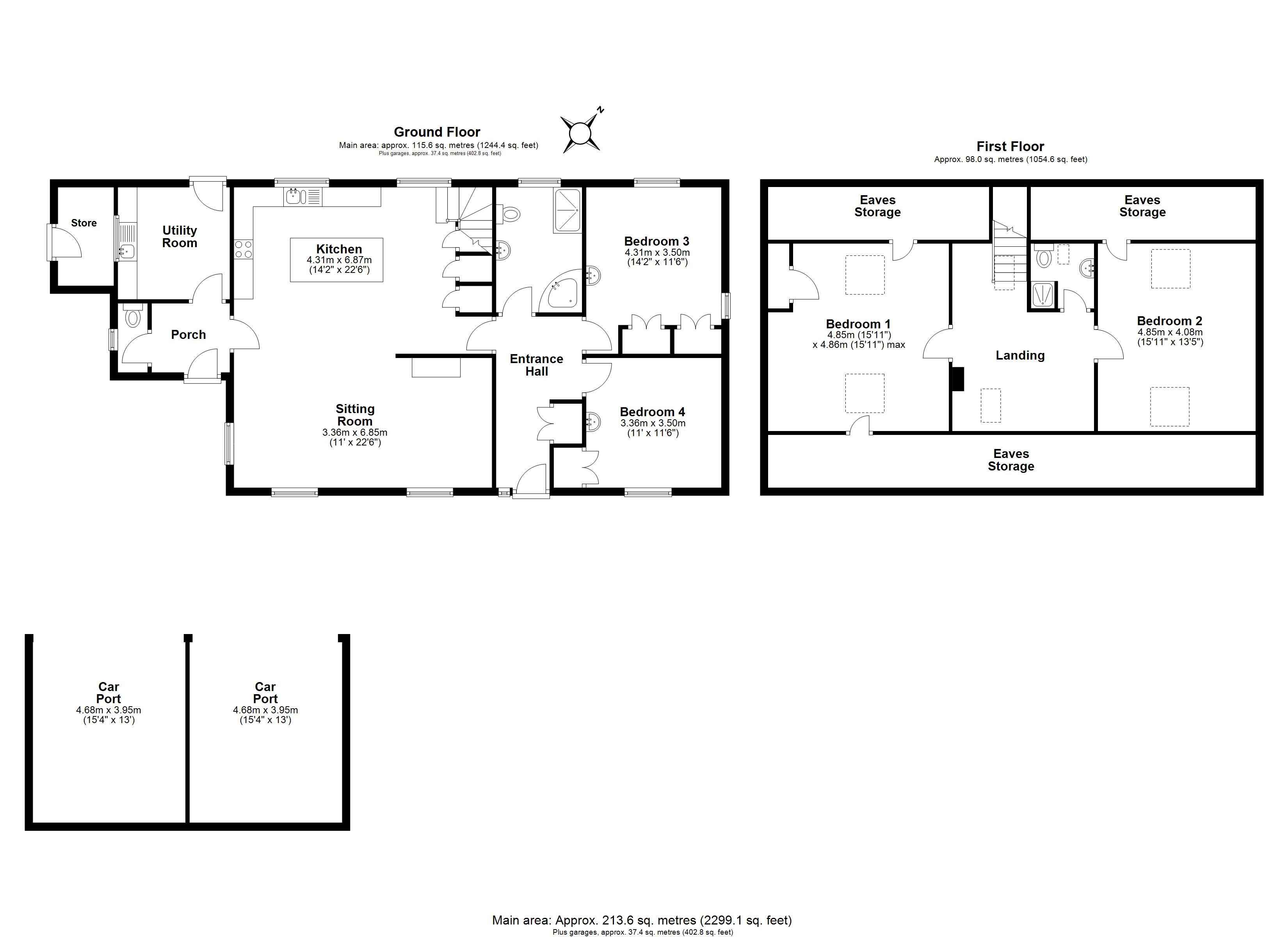
The accommodation is cleverly arranged to make the most of the available space. Accessed directly from the front porch is a WC and a useful utility room fitted with modern units. From here, a door opens into the generous open-plan kitchen/dining/living room, forming the central hub of the home. This light and airy space enjoys an abundance of natural light, with the kitchen fitted with flagstone flooring, a range of modern units with wooden work surfaces and a central island. The adjoining sitting area features a log burner, creating a comfortable and practical living space suitable for everyday use. Beyond, is a family bathroom and two double bedrooms, both fitted with basins, offering flexibility for ground-floor living if required. On the first floor, the property offers two further double bedrooms and a second bathroom. Extensive eaves storage provides additional practical space that is easily accessible.

The detached annexe, constructed in 2015, is finished to a modern standard and includes a utility room, open plan kitchen/dining/sitting room fitted with log burner.
On the first floor, there is a en-suite double bedroom. This self-contained accommodation is well suited for extended family, visiting guests or those seeking an additional income stream through letting opportunities.

Outside, the property is complemented by gardens which wrap around the property providing opportunities for lifestyle uses, outdoor recreation or smallholding activities. Further land could be made available by separate negotiation.

Other Information
Tenure | The farm is freehold with vacant possession available on completion.

Services | Mains water and electricity, private drainage.

Planning Permissions | The property benefits from a Certificate of Lawfulness confirming unrestricted residential use.

Local Authority | Mid Devon District Council.

Council Tax | Band E

Energy Performance Certificates |
Farmhouse—Rating D (60)
Annexe—Rating D (61)

Easements, Wayleaves, Rights of Way | The property is offered for sale, subject to and with the benefit of all matters contained in or referred to in the Property and Charges Register of the registered title together with all public or private rights of way, wayleaves, easements and other rights of way, which cross the property.

Sporting Rights | The sporting rights are included in the sale as far as they are owned.


Sale Plan | The farm plan is based on ordnance survey extracts, and the areas are not guaranteed and purchasers must satisfy themselves as to their accuracy.

Location, Land & Floor Plans | Not to scale and for identification purposes only.

Photographs | Taken December 2025.

Directions
Postcode - EX6 6JD
What3Words - ///gums.thinnest.venue

Viewings
Strictly by appointment only.

Documents

Floor Plans

Location

Exeter

The Matford Centre, Matford Park Road, Exeter, Devon EX2 8FD

Request a Viewing

Register For Property Updates