Back to search

Bathpool, Launceston, Cornwall PL15

£550,000 Guide Price

  • Bedrooms 3
  • Bathrooms 2
  • Reference LAU240311

Features

  • Exceptionally quiet, tucked away position approached via a no through road with gated entrance, generous parking, established shrubs and three Apple trees
  • Characterful interior offering three / four bedrooms, including a master en-suite
  • Open, light filled living room featuring a study / library with vaulted
  • ceiling, wooden spiral staircase and exposed stone / brick fireplace
  • Spacious kitchen / diner plus an additional large reception room ideal as sun room with patio access and elevated garden view
  • Beautifully landscaped gardens with winding pathways, large pond,
  • multiple patio areas and productive vegetable garden offering scope for further self-sufficiency
  • Further reception room offering excellent potential to be separated and converted into additional accommodation
  • EPC - C

Description

A quiet, tuckedaway home with generous parking, mature shrubs and apple trees. Inside offers 3–4 bedrooms, an ensuite master, light living room with vaulted study, spiral staircase, kitchendiner and flexible sun room. Landscaped gardens, pond and vegetable plot.

This unique and versatile property sits in an exceptionally quiet, tucked away position approached via a no through road and gated entrance opening into a generous parking area with three Apple trees and shrubbery.

Inside this characterful home features three / four bedrooms including a master en-suite, a open and light filled living room benefiting from a study / library with vaulted ceiling, a wooden spiral staircase and a exposed stone / brick fireplace. There is also a kitchen / diner, a further large reception room which could be utilized as a ‘sun room’ which is accessed from the wooden spiral staircase in the living room having access to the patio and offering elevated garden views. The additional reception room also offers excellent potential to be separated and converted into further accommodation, making it ideal for multi-generational living.

The landscaped gardens include winding pathways, a large pond, patio areas, along with a well established vegetable garden which has the opportunity for reconfiguration but currently has the capacity for growing further vegetables offering the opportunity for a more self-sufficient lifestyle.  Throughout the garden there is a lawn area, an abundance of shrubs, Hydrangeas and seasonal flowers including Snowdrops and Daffodils. There is also a individual stone shed which is accessible from the parking area.

LOCATION
The property is located in the well respected and much sought after Lynher Valley village of Bathpool.

The self contained village of Upton Cross is less than 2 miles away with a well respected primary school, public house and the famous Sterts open air theatre.

A more comprehensive range of facilities can be found at the former market town of Launceston, some 8 miles north, with its 24 hour supermarket, full range of social, commercial and shopping facilities along with access to the vital A30 trunk road which links the cathedral cities of Truro and Exeter.

To the south, again 8 miles away, is the market town of Liskeard with similar facilities, doctors, dentists and veterinary surgeries, leisure centre, mainline railway station serving London Paddington (via Plymouth) and the A38 trunk road which links Bodmin to the city port of Plymouth.

ACCOMODATION
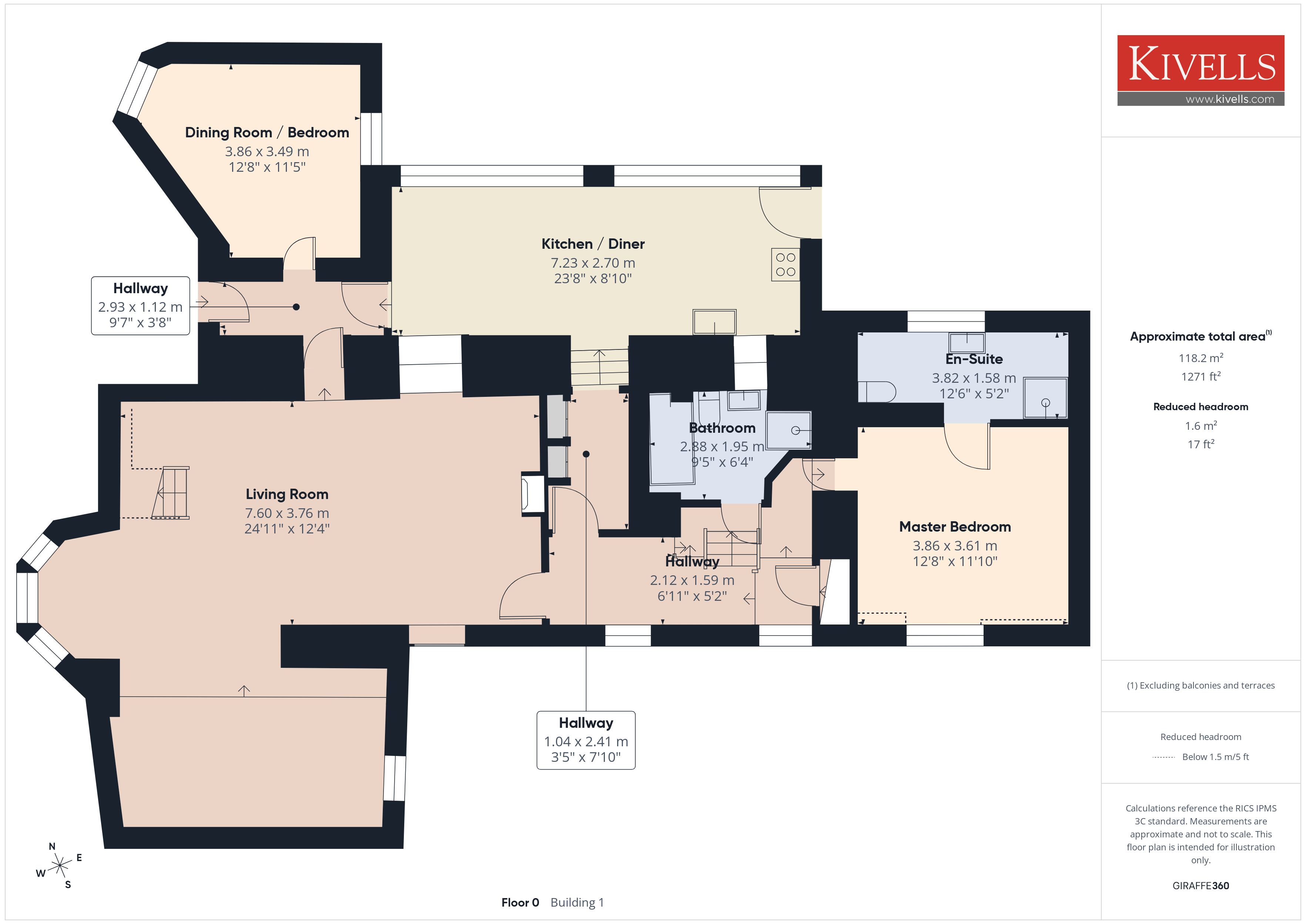
ENTRANCE HALLWAY
Full-length wooden door with small obscure window pane. Tiled flooring, exposed stonework and pendant light. Doors leading to kitchen, living room and:-

DINING ROOM / BEDROOM THREE
Two windows to the side elevation with brick sills. Centre round light with painted beams, wall lights and carpet. Suitable for a dining table or could be utilised as an additional bedroom.

KITCHEN / DINER
Polycarbonate roof and two sets of large windows overlooking the garden with wooden door leading to the garden. Roll top work surface with base units below having inset double stainless steel sink with mixer tap. Space for washing machine, fridge and dishwasher. Free standing electric oven. Slate floor, exposed stone, spotlights, radiator and space for a dining table.

From the kitchen, stairs with half height wooden panelling lead down to the pantry hallway, which includes four floor to ceiling storage cupboards and tiled flooring.

HALLWAY
Two windows to the rear elevation with wooden sills. Carpet, radiator and doors leading to ground floor rooms. Stairs rise to the bathroom and master bedroom, with further stairs leading down to the lower ground floor bedroom. Pendant lights, exposed beams and fuse board.

LIVING ROOM
Window to the rear elevation and large windows to the front allowing ample natural light. Large Velux window. Vaulted ceiling with wood panelling, exposed wooden beam and a circular wooden staircase rising to the first floor. Steps lead up to the entrance hallway. Exposed stone fireplace with inset wood burner and brick hearth. Wall lights, carpet, radiator and steps from the main living area lead down to:-

SNUG / OFFICE / LIBRARY
Window to the side elevation with window seat and a Velux window. Exposed beam and carpet. Ideal for a study or home office with ample space for book storage. Spotlights and radiator.

MASTER BEDROOM
Window to the rear elevation with wooden sill. Exposed painted wooden beams and painted wood panelling, carpet, radiator and pendant light. Space for bedroom furniture. Wooden door leading to:-

EN-SUITE
Obscure window to the front elevation with wooden sill. Exposed painted beams. Pedestal hand wash basin with mixer taps, bidet, close coupled W.C. and corner shower with tiled splashback. Carpet, spotlights and radiator.

Steps from the hallway lead to:-

LOWER GROUND FLOOR BEDROOM
Spacious bedroom with wrap around windows to all elevations with wooden sills. Exposed wooden beams, two radiators, wall lights and carpet. Suitable for larger than average bedroom furniture.

BATHROOM
Obscure window. Panel enclosed bath with mixer tap and shower head attachment with curtain rail and half height tiling, pedestal hand wash basin and close coupled W.C. Tiled corner shower with electric shower. Carpet, radiator and round bathroom light.

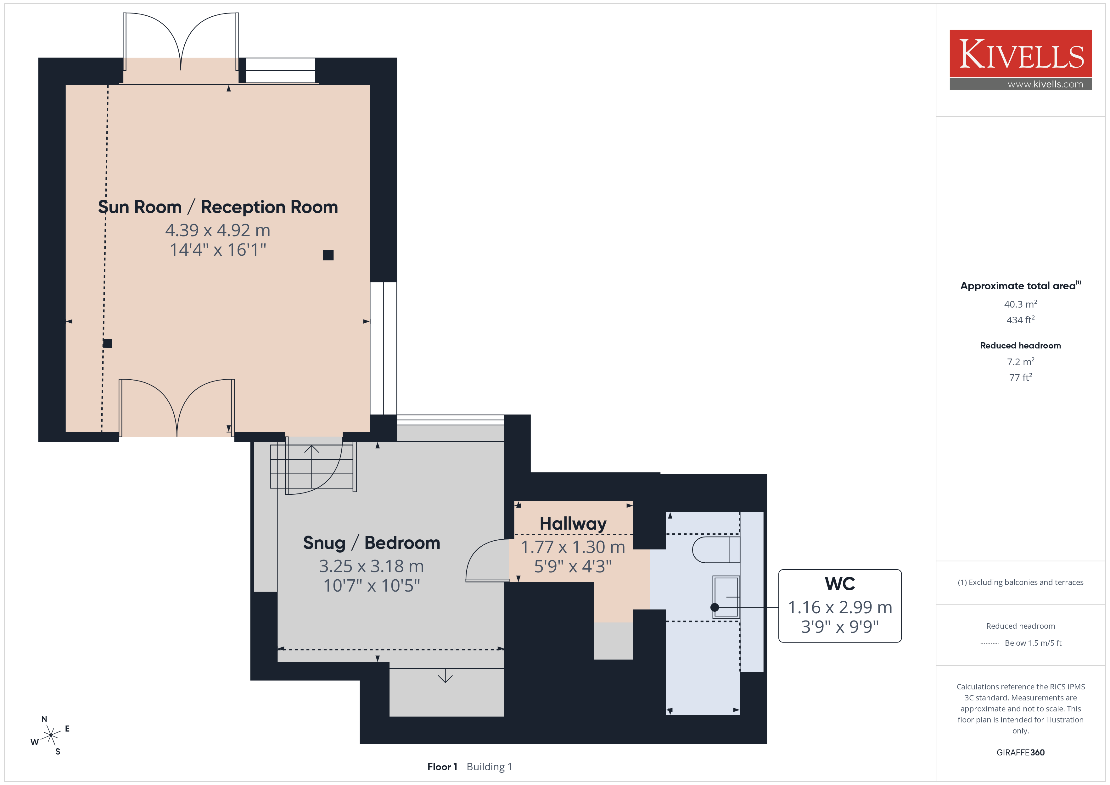
FIRST FLOOR LIVING SPACE
From the living room, a spiral staircase leads to an
additional living area. Two wooden doors with glass panes open into:-

SUN ROOM / FURTHER RECEPTION ROOM
Patio doors with flag window leading to the garden, two Velux windows and window to the side elevation. Two floor to ceiling wood panelled walls. Radiator, LVT flooring and wall lights. A fantastic space for enjoying the summer days or alternatively offers further accommodation which could be separated from the rest of the property. Stairs lead down to:-

STUDY / BEDROOM
Velux window and window overlooking the garden. Carpet, exposed painted beams, circular light and space for a small bedroom or home office.

HALLWAY
Exposed beams, carpet, hanging rail for additional storage and pendant light.

W.C.
Close coupled W.C., pedestal hand wash basin with mixer tap and electric instant hot water heater. Access to loft space, exposed beams, carpet and pendant light.

OUTSIDE
Outside
The property is approached via a quiet no through road with minimal passing traffic. A gated entrance from the main road opens into the grounds, guiding you towards the property. As you make your way to the parking area, you are welcomed by a beautiful area featuring a variety of fruit trees, mature shrubs, and lawn.

Before reaching the house, a generous parking area provides ample space for multiple vehicles and convenient access to the charming stone shed. A mature shrub hedge forms an attractive boundary, offering both privacy and character. A paved pathway with steps leads gracefully to the main entrance of the property.

The gardens are wonderfully mature and thoughtfully landscaped. A network of paved pathways meanders throughout, including a route that leads to the rear entrance of the home. The top floor reception room opens onto a delightful patio area, perfect for enjoying elevated views of the grounds. A large pond with a stone and gravel surround adds a tranquil focal point.

For those with a passion for home grown produce, the exceptionally well established vegetable garden features multiple raised vegetable beds and is an ideal opportunity for anyone seeking a more self sufficient lifestyle. A mature compost heap further supports sustainable living. Throughout the garden, you’ll find an abundance of established shrubs,
including Hydrangeas, along with seasonal flower beds bursting with Daffodils and Snowdrops.

There is also a small area of tucked away garden with a patio being enclosed with flower beds and trees.

STONE SHED
By the parking area, there is access to a stone build shed which has a variety of uses and potential. Access via a wooden part glazed door, window to the front elevation, floor to ceiling cupboard concrete floor and providing a great storage space.

SERVICES
Mains water and electricity. Drainage via septic tank, (not shared). Oil fired central heating. A total of 16 Solar panels owned by the property and contribute to the use of electricity. The annual income is in the region of £600.

EE Rating
C

Council tax band
D

Directions
What3Words – puppets.often.absorbing

Virtual Tour
Available on request

Viewings strictly by appointment only
Please ring 01566 777 777 to view this property and check availability before incurring travel time/costs. Full details of all our properties are available on our website www.kivells.com.

Disclaimer
Kivells, their clients, and any joint agents give notice that they are not authorised to make or give any representations or warranties in relation to the property either here or elsewhere, either on their own behalf or on behalf of their client or otherwise. They assume no responsibility for any statement that may be made in these particulars. These particulars do not form part of any offer or contract and must not be relied upon as statements or representations of fact. Any areas, boundaries, measurements, or distances are approximate. The text, photographs, CGI’s, and plans are for guidance only and are not necessarily comprehensive. It should not be assumed that the property has all necessary planning, building regulation, or other consents, and Kivells have not tested any services, equipment, or facilities. The property is sold subject to all matters in the Property and Charges Register, including rights of way, wayleaves, and easements. Purchasers are deemed to know all boundaries; neither the vendor nor agents will define them. Boundary disputes will be decided by the vendor’s agent. Nothing in these particulars constitutes financial advice. Seek your own financial advice. Using Mortgage Genies SW Ltd. services will result in a referral fee of £250 + VAT to Kivells. Kivells retains copyright to all sales particulars, photographs, floor plans, sketches, and advertisements.

Verified Material Information

Council Tax band: D

Tenure: Freehold

Property type: House

Property construction: Standard construction

Energy Performance rating: C

Electricity supply: Mains electricity

Solar Panels: Yes

Other electricity sources: No

Water supply: Mains water supply

Sewerage: Septic tank

Heating: Oil-powered central heating is installed.

Heating features: None

Broadband: FTTC (Fibre to the Cabinet)

Parking: Driveway

Building safety issues: No

Restrictions - Listed Building: No

Restrictions - Conservation Area: No

Restrictions - Tree Preservation Orders: None

Public right of way: Yes: There is a right of way over the track

Long-term area flood risk: No

Historical flooding: No

Flood defences: No

Coastal erosion risk: No

Planning permission issues: No

Accessibility and adaptations: None

Coal mining area: No

Non-coal mining area: No

All information is provided without warranty. Contains HM Land Registry data © Crown copyright and database right 2021. This data is licensed under the Open Government Licence v3.0.

The information contained is intended to help you decide whether the property is suitable for you. You should verify any answers which are important to you with your property lawyer or surveyor or ask for quotes from the appropriate trade experts: builder, plumber, electrician, damp, and timber expert.

Documents

Floor Plans

Location

Launceston

2 Broad Street, Launceston, Cornwall, PL15 8AD

Request a Viewing

Register For Property Updates