Ashmill, Ashwater, Beaworthy, Devon EX21

£450,000 Offers in Excess of

  • Bedrooms 4
  • Bathrooms 2
  • Reference LAU250216

Features

  • Four-bedroom semi-detached home
  • Spacious living accommodation across three floors
  • Renovated and completed to a very high standard of finish throughout
  • Bursting with distinctive features including exposed stone work and original ancient mill stone
  • Beautifully restored railway bridge and terraced garden
  • Situated in an idyllic rural location
  • Offered for sale with no onward chain
  • EPC - C
  • Virtual tour available upon request

Description

Semi-detached home with spacious living accommodation across three floors. Renovated and completed to a very high standard of finish bursting with distinctive features including exposed stone work and original ancient mill stone. Beautifully restored railway bridge and terraced garden. EPC - C

A fantastic opportunity to purchase an extremely well presented semi-detached home which has been renovated and completed to a very high standard of craftmanship throughout and is situated in a idyllic rural position being offered for sale with no onward chain.

The property is spread across three floors and is bursting with original distinctive features including exposed stone work, original beams and an ancient mill stone.

On the first floor there is an entrance hallway, W.C and a large open plan kitchen / diner and living space. On the second floor there is a spacious master en-suite bedroom with two large storage cupboards.

On the ground floor there are three bedrooms, exposed ancient mill stone and a family bathroom.

At the front, a small gravel area leads to the front door, with a path continuing around to the rear for access to the ground floor. To the side, there is ample parking extending onto a restored gravel laid railway bridge. Nearby, is a shed and an insulated, powered summer house—ideal for home working or rental income. Behind the summer house is a lawned area. Adjacent to the parking is a beautifully landscaped garden with tiered stone walls, low-maintenance lawn, and steps to a gravel terrace—perfect for outdoor dining. Wooden posts with rope divide the garden into charming sections.

LOCATION
Located on the outskirts of the popular village of Ashwater, an attractive village set within acres of rolling Devon countryside which boasts many useful amenities including Community General Store, Pub / Restaurant, Parish Church, Village Hall and nearby Primary School. Approximately 4.5 miles away from the property is Roadford Lake with excellent walking and water sports facilities. For those with coastal interests the North Cornish resort of Bude can be reached within just 17 miles, known for its sandy beaches, surf and cliff top walks. The open terrain of Dartmoor with all its natural beauty can be found within 19 miles. The ancient town of Launceston is situated approximately 10 miles distant and boasts a range of shopping, commercial, educational and recreational facilities. The larger City of Exeter is around 42 miles distant and offers a wider range of educational, cultural and leisure facilities including M5 motorway link, international airport and intercity rail link. The A30 dual carriageway provides access to the M5 at Exeter and West to the rest of Cornwall.

ACCOMMODATION

UTILITY / ENTRANCE HALL
Obscure window to the side elevation with wooden sill. Base units with space for washing machine, worktop above and inset stainless steel sink with mixer tap and drainer. Radiator, hot water cylinder, tiled floor and steps leading to:-

Steps from the first floor rise to:-

OPEN PLAN KITCHEN / DINING / LIVING SPACE
Two windows to the rear elevations with wooden sills and one large window to the side elevation. Exposed wooden beams, exposed wooden flooring, exposed stone wall, spotlights and two cast iron radiators. Door by stairs to second floor into storage cupboard. Range of base and eye level units with work surface over having inset stainless steel sink with mixer tap and drainer, tiled splash back, integrated dishwasher, inset hob with extractor fan above and oven below. Space for living room and dining room furniture.

W.C.
Obscure windows to the front and side elevations with wooden sills. Low level W.C. and vanity basin with mixer tap and tiled splash back. Heated towel rail, spotlights and tiled floor.

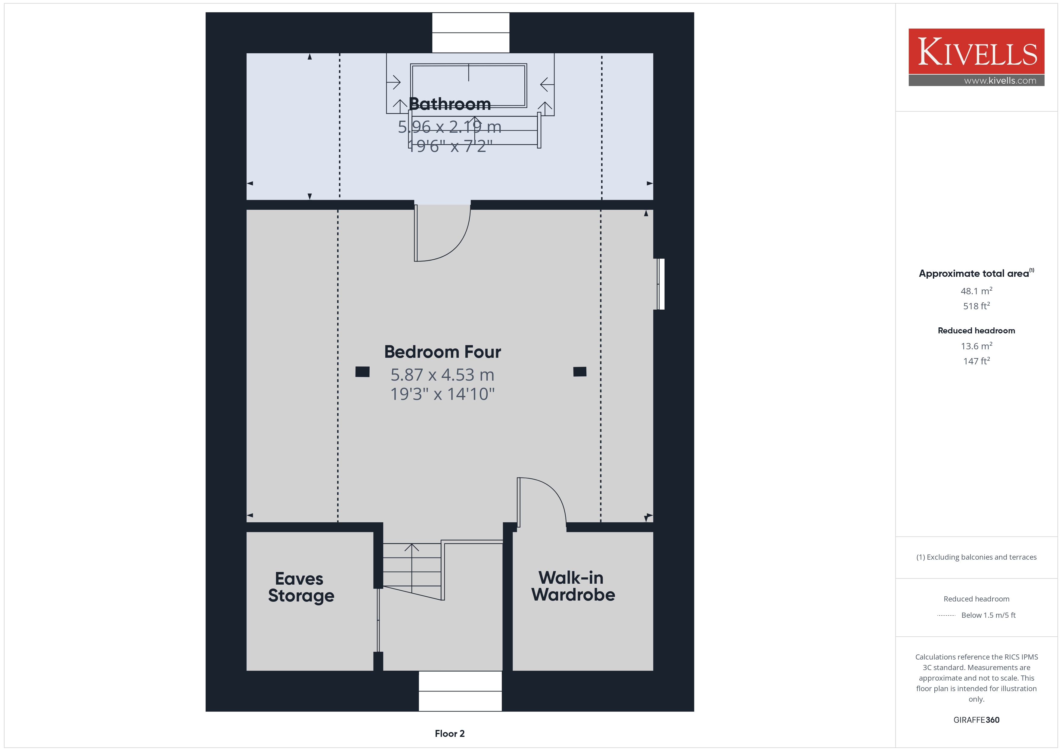
SECOND FLOOR
Two Velux windows to the side elevation and large window to the rear elevation with wooden sill and woodland views. Access into eaves storage space.

BEDROOM FOUR
Two velux windows to the side elevation, large window to the rear elevation with woodland views, exposed beams, wooden flooring, radiator and pendant lights. Space for king size bed and bedroom furniture. Door into walk-in wardrobe and seperate large storage cupboard.

EN-SUITE BATHROOM
Obscure window to the front elevation. Low level W.C., large bath with mixer tap sat on wooden stand, wall hung sink with mixer tap and tiled splash back. Exposed wooden beams, extractor fan, spotlights, heated towel rail, light switch, wooden flooring and door into eaves storage space.

Stairs from the open plan living space lead down to the ground floor.

GROUND FLOOR HALLWAY
Two obscure doors leading to the rear elevation. Doors leading to all rooms, carpeted, spotlights, old mill stone with wooden rails and glass panels. Radiator and fuse board.

BEDROOM TWO
Window to the front elevation with wooden sill. Carpeted, radiator, spotlights, space for king size bed and bedroom furniture.

BEDROOM THREE
Window to the front elevation with wooden sill. Carpeted, radiator, spotlights, door into under stairs storage cupboard with light.

BEDROOM ONE
Obscure windows to the rear elevation. Carpeted, spotlights, radiator, space for double bed and bedroom furniture.

BATHROOM
Obscure window with slate sill to the side elevation. Low level W.C., vanity unit with mixer taps, enclosed bath, walk-in shower with rain fall shower head attachment, spotlights, extractor fan, heated towel rail and loft hatch.

OUTSIDE
At the front of the property, there is a small graveled area as you approach the front door. There is also a graveled path which leads around to the rear where there is access to the ground floor accommodation.

To the side of the property, there is parking for numerous vehicles which leads onto the restored railway bridge which is laid to gravel. By the bridge, you can also access the shed together with the summer house which is insulated and has power connected. This creates a great opportunity for those looking to generate a further income or being able to work from home. Behind the summerhouse, there is an area laid to lawn.

To the side of the parking area, there a fantastically landscaped garden with different leveled stone walling, laid to lawn for ease of maintenance and steps leading up to a graveled area which is the perfect spot for outdoor entraining or alfresco dining. Wooden post with rope separates each wonderful part of the garden.

SERVICES
Mains water and electricity. Private drainage. Oil fired central heating.

TENURE
Freehold

COUNCIL TAX BAND
Torridge District Council. - E

EPC RATING
C

VIEWINGS Please ring 01566 777 777 to view this property and check availability before incurring travel time/costs. FULL DETAILS OF ALL OUR PROPERTIES ARE AVAILABLE ON OUR WEBSITE www.kivells.com.

WHAT.3.WORDS LOCATION
workflow.busters.chugging

BOUNDARIES
Any purchaser shall be deemed to have full knowledge of all boundaries and neither vendor nor the vendor’s agents will be responsible for defining the boundaries or the ownership thereof. Should any dispute arise as to the boundaries or any points on the particulars or plans or the interpretation of them, the question shall be referred to the vendor’s agent whose decision acting as experts shall be final.

EASEMENTS, WAYLEAVES & RIGHTS OF WAY
The property is offered for sale, subject to and with the benefit of all matters contained in or referred to in the Property and Charges Register of the registered title together with all public or private rights of way, wayleaves, easements and other rights of way, which cross the property.

IMPORTANT NOTICE
Kivells, their clients and any joint agents give notice that:
1. They are not authorised to make or give any representations or warranties in relation to the property either here or elsewhere, either on their own behalf or on behalf of their client or otherwise. They assume no responsibility for any statement that may be made in these particulars. These particulars do not form part of any offer or contract and must not be relied upon as statements or representations of fact.

2. Any areas, measurements or distances are approximate. The text, photographs and plans are for guidance only and are not necessarily comprehensive. It should not be assumed that the property has all necessary planning, building regulation or other consents and Kivells have not tested any services, equipment or facilities. Purchasers must satisfy themselves by inspection or otherwise.


Verified Material Information

Council tax band: E

Tenure: Freehold

Property type: House

Property construction: Standard undefined construction

Energy Performance rating: C

Electricity supply: Mains electricity

Solar Panels: No

Other electricity sources: No

Water supply: Mains water supply

Sewerage: Septic tank

Heating: Oil-powered central heating is installed.

Heating features: Double glazing

Broadband: FTTC (Fibre to the Cabinet)

Mobile coverage: O2 - OK, Vodafone - OK, Three - OK, EE - Poor

Parking: Off Street

Building safety issues: No

Restrictions - Listed Building: No

Restrictions - Conservation Area: Torridge District Council

Restrictions - Tree Preservation Orders: None

Public right of way: No

Long-term area flood risk: No

Historical flooding: No

Flood defences: No

Coastal erosion risk: No

Planning permission issues: No

Accessibility and adaptations: None

Coal mining area: No

Non-coal mining area: No

Loft access: No

All information is provided without warranty. Contains HM Land Registry data © Crown copyright and database right 2021. This data is licensed under the Open Government Licence v3.0.

The information contained is intended to help you decide whether the property is suitable for you. You should verify any answers which are important to you with your property lawyer or surveyor or ask for quotes from the appropriate trade experts: builder, plumber, electrician, damp, and timber expert.

Documents

Floor Plans

Location

Launceston

2 Broad Street, Launceston, Cornwall, PL15 8AD

Request a Viewing

Register For Property Updates