Back to search

Tavistock Road, Launceston, Cornwall PL15

£375,000 Offers in Region of

  • Reference LAU260010

Features

  • Elevated position with far reaching Dartmoor views
  • Generous 3 bedroom detached town residence with open plan living space
  • Private enclosed south facing rear garden
  • Ample parking with garage and car port which could be converted to annexed
  • accommodation (subject to planning)
  • Walking distance to town centre and amenities
  • Excellent access to A30 and surrounding areas
  • EPC - to be confirmed

Description

Spacious three bedroom detached home in an elevated position with far reaching Dartmoor views. Offering well balanced accommodation, ample parking and a private enclosed garden, all within walking distance of the town centre. Potential for annexe (STP).

SITUATION
Grander View is situated on the southern border of Launceston with ease of access to the A30 dual carriageway spine road for Cornwall and Devon providing connectivity to two of the countries prettiest Cathedral cities - Truro to the west, 46 miles and Exeter to the east, 44 miles, the latter providing Intercity Rail Link, International Airport and M5 motorway link. The property is also just off the A388 giving good access to the City of Plymouth which provides Continental Ferry Port and all the yachting facilities of Plymouth Sound.

In all directions from Launceston there is scenery of outstanding natural beauty, be it the rugged North Cornish coast to the north, the wide open spaces of Bodmin Moor ideal for walking and riding to the west, Dartmoor National Park to the east or the hidden beauty of the Tamar Valley stretching southwards renowned for salmon fishing and 18th Century mining history.

Within easy walking distance of the property is a food supermarket and a little further beyond the town’s recreation park with leisure centre including indoor swimming pool. Also within walking distance is a primary school and the town’s secondary school.


DESCRIPTION
A spacious three bedroom detached home set in an elevated position, enjoying far reaching views towards Dartmoor. The property offers well balanced accommodation, ample parking and a private enclosed rear garden, all within easy walking distance of the town centre and its facilities. The double garage and carport offer excellent further potential for annexed accommodation, subject to the necessary planning permissions being achieved.

ACCOMMODATION
uPVC double glazed entrance door with stained glass port hole windows to the front leading into:-

ENTRANCE HALL
uPVC double glazed window with obscure glass to the side. Slate tiled floor, recessed spotlighting, under floor heating throughout, stairs rising to first floor with under stair storage cupboard. Doors to:-

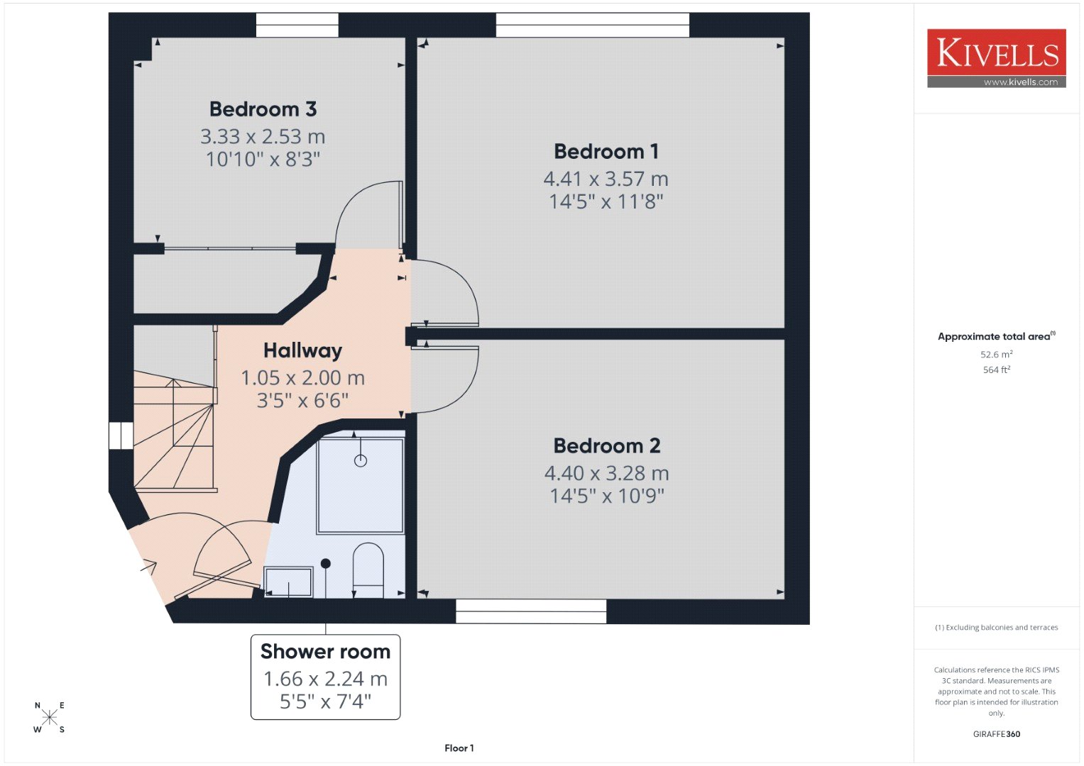
SHOWER ROOM
Fully tiled floor to ceiling and tiled floor. Pedestal hand wash basin, close coupled W.C. and curved shower enclosure with mixer shower over and curved mosaic tiled wall.

BEDROOM ONE
A large double bedroom with uPVC double glazed window to the rear. Central ceiling light, space for bedroom furniture, T.V. point, under floor heating control and fitted carpet.

BEDROOM TWO
A further large double bedroom with uPVC double glazed window to the front aspect. Space for bedroom furniture, pendant light, under floor heating control and fitted carpet.


BEDROOM THREE
Double room with uPVC double glazed window to the front aspect. Location of electric consumer unit and built-in wardrobes with rail and shelving providing deep storage space. Under floor heating control and pendant ceiling light.

Stairs from the hallway rise to:-
FIRST FLOOR
Opening to the:-

OPEN PLAN KITCHEN / LIVING SPACE
A large entertaining space with uPVC double glazed picture window to the front aspect having 180° views including towards Dartmoor and uPVC double glazed French patio doors leading out to the rear garden space. Wall and pendant ceiling lighting, three T.V. points, fibre optic Broadband point and Oak effect flooring throughout. The kitchen area has matching wall and base units with granite worksurfaces and matching upstands having inset stainless steel sink with mixer tap over, built-in double oven, integrated electric hob with extractor fan over, space and plumbing for dishwasher and washing machine. Further uPVC double glazed window to the rear. A central island with pendant ceiling light over and a plethora of additional utility drawer space. Door to:-
BATHROOM
Two uPVC double glazed windows to the front. Large centre fill bath with curved mosaic tiled wall, pedestal hand wash basin and close coupled W.C. Extractor fan and recessed spotlights.

Outside
Beneath the property on the ground floor is a large:-

DOUBLE GARAGE
Electric up and over door and uPVC fully glazed pedestrian door to the front. Fluorescent strip lighting, location of pressurised hot water cylinder in addition to wall mounted gas boiler serving the underfloor heating and hot water. Adjoining this to the side is also a COVERED CAR PORT providing additional parking.

There is further parking to the rear of the property in addition for two cars in tandem.

TOOL STORE
Multi pane glass pedestrian door with tool storage space beneath garden area.

SOUTH FACING REAR GARDEN
The rear garden is directly accessed from the lounge in addition to steps up from the parking area to the rear of the property which has a block paved patio seating area with fence boundaries, leading to a triangular shaped lawn area with further small patio at the far end.

There is access to the rear from all sides of the property.

SERVICES
Mains Water, Drainage, Gas and Electric

AGENTS NOTE
Please note that the property enjoys an unrestricted right of access to the front and side of the property for parking and turning, highlighted in blue on the included plan.

EE Rating - tbc
Council tax band - D
Directions
What3Words – overdrive.koala.seashell
Virtual Tour - available on request

Viewings strictly by appointment only
Please ring 01566 777 777 to view this property and check availability before incurring travel time/costs. Full details of all our properties are available on our website www.kivells.com.

Disclaimer
Kivells, their clients, and any joint agents give notice that they are not authorised to make or give any representations or warranties in relation to the property either here or elsewhere, either on their own behalf or on behalf of their client or otherwise. They assume no responsibility for any statement that may be made in these particulars. These particulars do not form part of any offer or contract and must not be relied upon as statements or representations of fact. Any areas, boundaries, measurements, or distances are approximate. The text, photographs, CGI’s, and plans are for guidance only and are not necessarily comprehensive. It should not be assumed that the property has all necessary planning, building regulation, or other consents, and Kivells have not tested any services, equipment, or facilities. The property is sold subject to all matters in the Property and Charges Register, including rights of way, wayleaves, and easements. Purchasers are deemed to know all boundaries; neither the vendor nor agents will define them. Boundary disputes will be decided by the vendor’s agent. Nothing in these particulars constitutes financial advice. Seek your own financial advice. Using Mortgage Genies SW Ltd. services will result in a referral fee of £250 + VAT to Kivells. Kivells retains copyright to all sales particulars, photographs, floor plans, sketches, and advertisements.

Plan included not a title plan and for general guidance only.


Verified Material Information

Council Tax band: D

Tenure: Freehold

Property type: House

Property construction: Standard construction

Energy Performance rating: Survey Instructed

Electricity supply: Mains electricity

Solar Panels: No

Other electricity sources: No

Water supply: Mains water supply

Sewerage: Mains

Heating: Mains gas-powered central heating is installed.

Heating features: Double glazing

Broadband: FTTP (Fibre to the Premises)

Mobile coverage: O2 - Great, Vodafone - Good, Three - Good, EE - Great

Parking: Driveway, Garage, and Rear

Building safety issues: No

Restrictions - Listed Building: No

Restrictions - Conservation Area: No

Restrictions - Tree Preservation Orders: None

Public right of way: No

Long-term area flood risk: No

Historical flooding: No

Flood defences: No

Coastal erosion risk: No

Planning permission issues: No

Accessibility and adaptations: None

Coal mining area: No

Non-coal mining area: No

All information is provided without warranty. Contains HM Land Registry data © Crown copyright and database right 2021. This data is licensed under the Open Government Licence v3.0.

The information contained is intended to help you decide whether the property is suitable for you. You should verify any answers which are important to you with your property lawyer or surveyor or ask for quotes from the appropriate trade experts: builder, plumber, electrician, damp, and timber expert.

Documents

Floor Plans

Location

Launceston

2 Broad Street, Launceston, Cornwall, PL15 8AD

Request a Viewing

Register For Property Updates