Back to search

Two Waters Foot, Liskeard, Cornwall PL14

£425,000 Guide Price

  • Bedrooms 3
  • Bathrooms 1
  • Reference LIS260035

Features

  • Detached three bedroom farmhouse
  • Set within approximately 1.34 acres
  • Fantastic potential for renovation
  • Idyllic rural location

Description

Set within approximately 1.34 acres of gardens and land, this three-bedroom detached farmhouse presents a rare and exciting opportunity to create a truly special home in a peaceful rural setting.

Requiring modernisation throughout, the property offers potential for renovation, extension (subject to the necessary consents), or even smallholding use, making it ideal for buyers looking to put their own stamp on a characterful home.

The accommodation is arranged over two levels and offers generous proportions, typical of a traditional farmhouse. While in need of updating, the property provides a solid foundation with versatile living space, allowing for reconfiguration to suit a variety of lifestyles.

Externally, the property is set within approximately 1.34 acres, comprising a mix of garden and land, offering fantastic scope for a range of uses such as gardening, hobby farming, or simply enjoying the open space and surrounding countryside. An outbuilding further enhances the appeal, providing additional storage or potential for conversion (subject to permissions).

Accessed via a shared driveway, the property enjoys a tucked-away position within a rural location, offering peace, privacy, and a wonderful sense of seclusion.

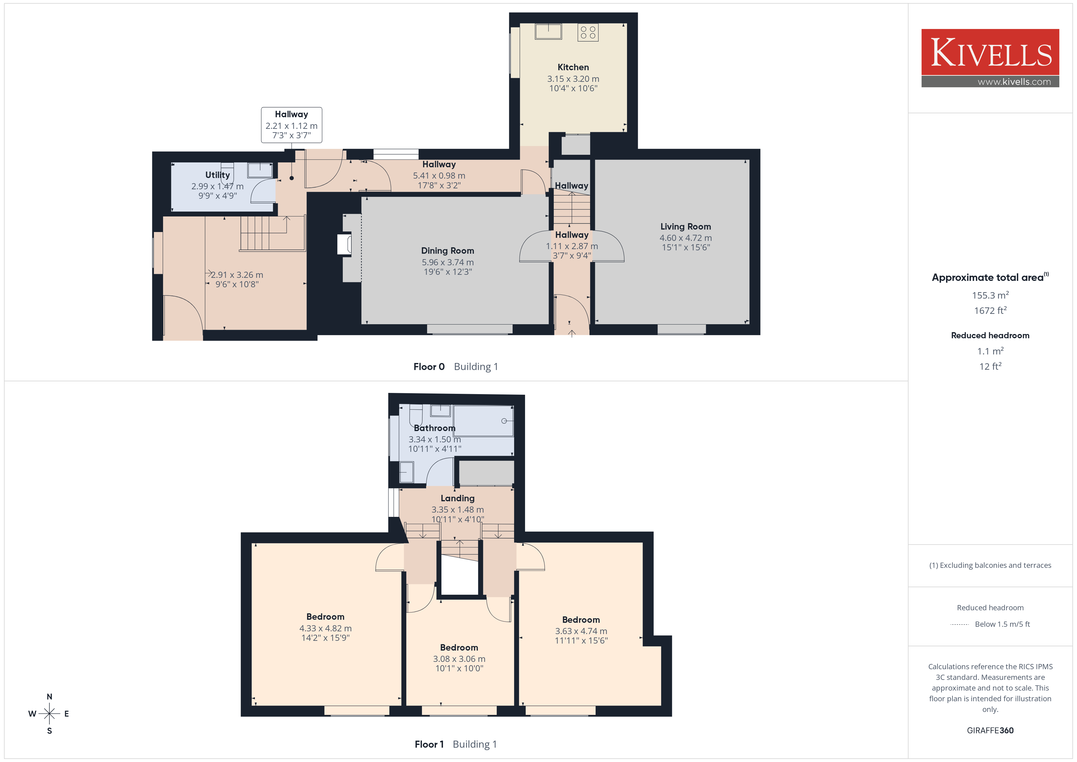
Accommodation
Wooden door with single glazed obscure panelling insets opening into:-

Hallway
Doors off to ground floor rooms, stairs rising to first floor.

Living Room
uPVC double glazed window to the front elevation, gas fire with tiled surround, television point.

Dining Room
uPVC double glazed window to the front elevation, oil stove with Flagstone hearth and wooden mantle over, television point.

Inner Hallway
uPVC double glazed window to the rear elevation, under stairs storage cupboard, granite flooring, wooden door leading to rear elevation, steps lowering to:- 

Storage Barn
Wooden single glazed window to the side elevation, wooden door leading to front elevation, fitted base units with roll top worksurfaces over.

Utility Room
Low-level W.C, wash hand basin with mixer tap over and hot water mixer tap, space and plumbing for washing machine, space for tumble dryer.

Kitchen
uPVC double glazed window to the side elevation, a range of fitted wall and base units with roll top work surfaces over incorporating a stainless steel sink and drainer with individual taps over, space for freestanding gas cooker with extractor fan over, space for undercounter fridge, built in storage cupboards, tiled splashback.

First Floor
Doors off to first floor rooms, built-in storage cupboard, uPVC double glazed window to the side elevation. 

Bedroom
uPVC double glazed window to the front elevation. 

Bedroom
uPVC double glazed window to the front elevation, built in wardrobe. 

Bedroom
uPVC double glazed window to the front elevation.

Bathroom
uPVC double glazed window to the side elevation, low-level W.C, wash hand basin with mixer tap over and vanity storage below, pedestal wash hand basin with mixer tap, walk in double shower with electric mixer shower tap and glazed shower screen with floor to ceiling panelling, chrome heated towel radiator. 

Outside
The property sits within an impressive plot of approximately 1.34 acres, offering a wonderful sense of space, privacy and versatility in a peaceful rural setting.

The grounds are predominantly laid to lawn, interspersed with a variety of mature, well-established trees and shrubs that provide both structure and seasonal interest throughout.

The land is arranged as a whole, creating a highly usable and flexible outdoor space, ideal for a range of purposes such as gardening, smallholding, or simply enjoying the open countryside surroundings. The generous plot enhances the property’s appeal, offering excellent potential for those seeking a more self-sufficient or outdoor-focused lifestyle.

A charming stone outbuilding/barn is also located within the grounds, providing useful storage or scope for a variety of alternative uses, subject to any necessary consents.

Services
Mains electricity, private water via borehole and private drainage via septic tank.

EE Rating - G

Council Tax Band - C

Directions
What3Words – wobbling.locked.depth

Virtual Tour
https://tour.giraffe360.com/1b23f77c2d50449da802e431c2f28cbc

Tenure - Freehold

Viewings strictly by appointment only
Please ring 01579 345543 to view this property and check availability before incurring travel time/costs. Full details of all our properties are available on our website www.kivells.com.

Verified Material Information
Council Tax band: C
Tenure: Freehold
Property type: House
Property construction: Standard construction
Energy Performance rating: G
Electricity supply: Mains electricity
Solar Panels: No
Other electricity sources: No
Water supply: boreholde
Sewerage: Septic tank
Heating: None is installed.
Heating features: None
Broadband: FTTC (Fibre to the Cabinet)
Mobile coverage: O2 - Good, Vodafone - Good, Three - Good, EE - Great
Parking: Driveway and Private
Building safety issues: No
Restrictions - Listed Building: No
Restrictions - Conservation Area: No
Restrictions - Tree Preservation Orders: None
Public right of way: No
Long-term area flood risk: No
Historical flooding: No
Flood defences: No
Coastal erosion risk: No
Planning permission issues: No
Accessibility and adaptations: None
Coal mining area: No
Non-coal mining area: Yes
All information is provided without warranty. Contains HM Land Registry data © Crown copyright and database right 2021. This data is licensed under the Open Government Licence v3.0.
The information contained is intended to help you decide whether the property is suitable for you. You should verify any answers which are important to you with your property lawyer or surveyor or ask for quotes from the appropriate trade experts: builder, plumber, electrician, damp, and timber expert.

Documents

Floor Plans

Location

Video Tour

Liskeard

7 - 8 Bay Tree Hill, Liskeard, Cornwall PL14 4BE

Request a Viewing

Register For Property Updates